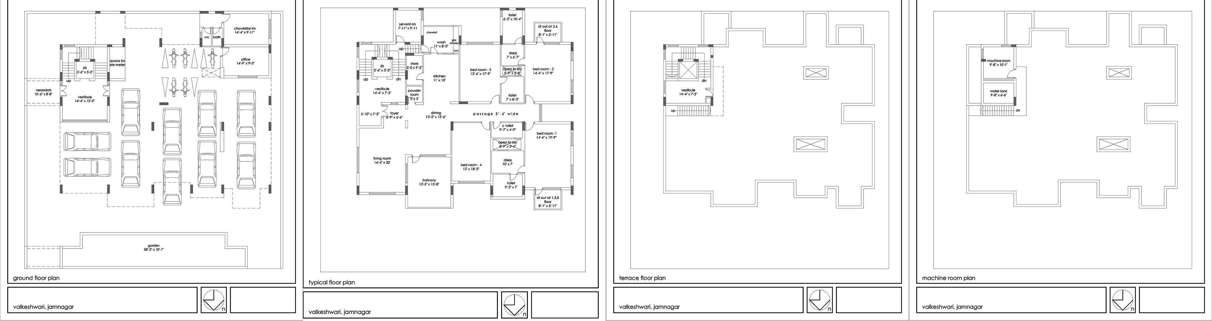
Our current project is located at Jamnagar - India, buildings consisiting of 5 stories, 4 Bedroom apartments.
Site is in the center of Posh and peaceful Ambavijay area, where 14 gardens scattered all over the whole area.
D K V Science & Art College, St Xavier’s High School, M P Shah Medical College, Ayurvedic University,
Irwin Hospital, Bhavan’s Mahila College, St Anne’s Girls School, Shri Satya Sai School etc.
are in the vicinity of 10 minutes walk.

New Project
PLANS
Details
Apartment Details
Walkin